+359 896 162 777 office@novvek.bg

гр. Варна, ул. София 3 Работно време: 9:00 - 18:00

Продава 2-стаен КОД: 82

НОВО СТРОИТЕЛСТВО!!!БУТИКОВА СГРАДА!!!КВ.БРИЗ

€ 205,500 / € 2,308.99 на м2 /

2-стаен Тип

Етаж 0 от 0 етажа

0 Спални

0 м2 Чиста площ

89 м2 Обща площ

€ 2,308.99 Цена м2

€ 205,500 Цена

  • Код: 82
  • Статус: Свободен
  • Град: Варна
  • Район: Бриз
  • Строителство: Тухла
  • Година на строителство: 2027
  • Площ: 89 м2

НОВ ВЕК Недвижими имоти предлага на вашето внимание един нов проект в кв.Бриз гр.Варна.

Двустаен апартамент намиращ се в сграда с комбинация от модерна архитектура и луксозно изпълнение, в непосредствен допир с природата. Именно това съчетание гарантира на Вас и Вашите деца, спокойствие и удобство, от което всички имаме нужда в забързаното ежедневие!

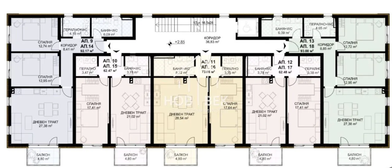
Разпределението е както следва : коридор, баня с тоалетна, перално, хол с кухня и трапезария, спалня, тераса. Към апартамента има предвидено за закупуване паркомясто с топла връзка.

В сградата има 21 апартамента с площ от 72 до 156 м², като за всеки от тях има предвидено мазе.

Сградата е на пешеходно разстояние от стадион Юрий Гагарин и на 500 метра от автобусна спирка на бул. Васил Левски . В близост има голям хипермаркет, плувен басейн, фитнес зала, медицински център, детски градини и училища.

Правилните форми, функционалните разпределения и внимание към всеки детайл са в основата на проекта.

– Блиндирани входни врати

– 8-местен електрически асансьор

– Входната и гаражната врати на Hörmann

– Дограмата е в сив цвят с профили GEALAN – шест-камерна, енерджи стъкла

– До всяка стая на апартаментите ще бъдат прекарани трасета за климатици

– Ограда от ковано желязо, по цялата периферия на имота

– Тераси със стъклени парапети

– Периметрово видеонаблюдене

– Видеонаблюдение на подземния паркинг

– Апартаментите имат вградена система за охрана

На разположение на бъдещите собственици, в двора ще бъдат изградени кът за отдих и детска площадка.

Гъвкавите схеми на разплащане и неподлежащата на промяна цена след подписване на предварителен договор, са допълнителни предимства. Съдействаме за банков кредит, интериорен дизайн и довършителни работи.

Не се колебайте да се свържете с мен на: 359882853331 Валентин Динев

НОВО СТРОИТЕЛСТВО!!!БУТИКОВА СГРАДА!!!КВ.БРИЗ
Продава

НОВО СТРОИТЕЛСТВО!!!БУТИКОВА СГРАДА!!!КВ.БРИЗ

2-стаен КОД: 82

€ 205,500 / € 2,308.99 на м2 /

Варна Бриз

Площ:
89 м2

Тип:
2-стаен

Етаж:
0

* Натискайки бутона “Изпращане” Вие се съгласявате с нашите Общи условия и Политиката за защита на личните данни.

Още имоти

Продава

3-стаен

КОД: 726

€ 170,000 / € 1,966.00 на м2 /

Варна Младост

Площ:
86.47 м2

Тип:
3-стаен

Етаж:
4 от 6

Продава ЕКСКЛУЗИВНО

2-стаен

КОД: 725

€ 135,000 / € 2,097.58 на м2 /

Варна Младост

Площ:
64.36 м2

Тип:
2-стаен

Етаж:
3 от 5

Продава

3-стаен

КОД: 724

€ 160,000 / € 1,467.89 на м2 /

Варна Колхозен пазар

Площ:
109 м2

Тип:
3-стаен

Отдава под наем ЕКСКЛУЗИВНО

3-стаен

КОД: 723

€ 500 / € 8.33 на м2 /

Варна Цветен

Площ:
60 м2

Тип:
3-стаен

Етаж:
1 от 8

Продава

Къща

КОД: 722

€ 698,000 / € 2,492.86 на м2 /

Варна Аспарухово

Площ:
280 м2

Тип:
Къща

Продава

2-стаен

КОД: 719

€ 128,500 / € 2,294.64 на м2 /

Варна Владиславово

Площ:
56 м2

Тип:
2-стаен

Етаж:
7 от 9

Продава ЕКСКЛУЗИВНО

3-стаен

КОД: 718

€ 125,000 / € 1,315.79 на м2 /

Варна

Площ:
95 м2

Тип:
3-стаен

Етаж:
5 от 9

Продава ЕКСКЛУЗИВНО

2-стаен

КОД: 717

€ 90,000 / € 1,363.64 на м2 /

Варна

Площ:
66 м2

Тип:
2-стаен

Етаж:
5 от 9

Продава

4-стаен

КОД: 711

€ 375,000 / € 2,435.06 на м2 /

Варна, област м-т Кабакум

Площ:
154 м2

Тип:
4-стаен

Продава

3-стаен

КОД: 710

€ 159,900 / € 2,422.73 на м2 /

Варна Младост

Площ:
66 м2

Тип:
3-стаен

Етаж:
2 от 8

Продава

Сгради

КОД: 709

При запитване

Варна Изгрев

Площ:
8500 м2

Тип:
Сгради

Научи за новите имоти преди да бъдат публикувани!

* Натискайки бутона “Абонирай ме” Вие се съгласявате с нашите Общи условия и Политиката за защита на личните данни, като ще получавате имейлки от Нов Дом на посочения имейл адрес