+359 896 162 777 office@novvek.bg

гр. Варна, ул. София 3 Работно време: 9:00 - 18:00

Продава ЕКСКЛУЗИВНО 3-стаен КОД: 281

Тристаен апартамент в сграда Варненчик 4 до Кайсиева градина

€ 136,333 / € 1,228.23 на м2 /

3-стаен Тип

Етаж 5 от 15 етажа

2 Спални

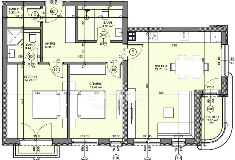
94 м2 Чиста площ

111 м2 Обща площ

€ 1,228.23 Цена м2

€ 136,333 Цена

  • Код: 281
  • Статус: Свободен
  • Град: Варна
  • Строителство: Тухла
  • Година на строителство: 2028
  • Площ: 111 м2

НОВО КАЧЕСТВЕНО СТРОИТЕЛСТВО! СГРАДА РАЗПОЛОЖЕНА В НАЙ- ХУБАВАТА ЧАСТ НА КВАРТАЛ ВЛАДИСЛАВ ВАРНЕНЧИК! ВЪЗМОЖНОСТ ЗА ИЗБОР НА РАЗЛИЧНИ ОБЕКТИ!

Агенция за недвижими имоти НОВ ВЕК ви представя новият ни ексклузивен проект, сграда “VARNENCHIK 4”!

Възможност за избор между различни етажи и изложения, открити паркоместа, подземен паркинг и самостоятелни гаражи! Сградата разполага с всички видове жилища от едностаен до четиристаен апартамент! Гъвкави схеми на плащане, според възможностите и профила на клиента. Всеки закупил имот в сградата, получава безплатна консултация с интериорен дизайнер, както и отстъпка при поръчка на проект за завършване и обзавеждане!

Имотът е с чиста жилищна площ от 94.05 кв.м. и се състои от: коридор, дневна с кухня и трапезария, две спални, един балкон, баня с тоалетна, килер/перално, втора тоалетна . Към всеки имот ще бъдат включени съответните идеални части от общите части на сградата, както и от земята върху която ще бъде изграден обекта.

Сградата ще бъде разположена под бул. 3-ти март, близо до магазини KAUFLAND и JUMBO. Новите собственици ще имат на разположение всичко необходимо на пешеходно разстояние. Магазини, аптеки, парк с алеи за разходка и обособени места за домашни любимци, спирка на градски транспорт с редовни линии до всички части на града, училища и детски градини, фитнес зала, банки, пазар, офиси на спедиторски компании и много други!

ПРЕДИМСТВА НА СГРАДАТА:

· Функционални разпределения за максимален комфорт и уют на обитаване;

· Светли и просторни стаи с правилни форми, всяко жилище разполага с 1 или 2 сервизни помещения;

· Панорамна гледка към Варненското езеро и града;

· Качествено изпълнение до степен на завършеност БДС, подготвено за довършителни дейности;

· Възможност за обединение на апартаменти при нужда от по- голяма площ;

БОНУСИ ПРИ ПОКУПКА НА ИМОТ В СГРАДАТА:

· Безплатна консултация с интериорен дизайнер;

· Отстъпка при поръчка на проект за интериорен дизайн;

· Отстъпка от материалите, необходими за довършителни работи;

· Отстъпка при поръчка на обзавеждане и оборудване;

· Опция за завършване до ключ;

Обадете се сега и цитирайте : Код 281

За повече информация и огледи:

Богдан Димитров – 0883/458889

Тристаен апартамент в сграда Варненчик 4 до Кайсиева градина
Продава ЕКСКЛУЗИВНО

Тристаен апартамент в сграда Варненчик 4 до Кайсиева градина

3-стаен КОД: 281

€ 136,333 / € 1,228.23 на м2 /

Варна

Площ:
111 м2

Тип:
3-стаен

Етаж:
5

* Натискайки бутона “Изпращане” Вие се съгласявате с нашите Общи условия и Политиката за защита на личните данни.

Още имоти

Продава

3-стаен

КОД: 726

€ 170,000 / € 1,966.00 на м2 /

Варна Младост

Площ:
86.47 м2

Тип:
3-стаен

Етаж:
4 от 6

Продава ЕКСКЛУЗИВНО

2-стаен

КОД: 725

€ 135,000 / € 2,097.58 на м2 /

Варна Младост

Площ:
64.36 м2

Тип:
2-стаен

Етаж:
3 от 5

Продава

3-стаен

КОД: 724

€ 160,000 / € 1,467.89 на м2 /

Варна Колхозен пазар

Площ:
109 м2

Тип:
3-стаен

Отдава под наем ЕКСКЛУЗИВНО

3-стаен

КОД: 723

€ 500 / € 8.33 на м2 /

Варна Цветен

Площ:
60 м2

Тип:
3-стаен

Етаж:
1 от 8

Продава

Къща

КОД: 722

€ 698,000 / € 2,492.86 на м2 /

Варна Аспарухово

Площ:
280 м2

Тип:
Къща

Продава

2-стаен

КОД: 719

€ 128,500 / € 2,294.64 на м2 /

Варна Владиславово

Площ:
56 м2

Тип:
2-стаен

Етаж:
7 от 9

Продава ЕКСКЛУЗИВНО

3-стаен

КОД: 718

€ 125,000 / € 1,315.79 на м2 /

Варна

Площ:
95 м2

Тип:
3-стаен

Етаж:
5 от 9

Продава ЕКСКЛУЗИВНО

2-стаен

КОД: 717

€ 90,000 / € 1,363.64 на м2 /

Варна

Площ:
66 м2

Тип:
2-стаен

Етаж:
5 от 9

Продава

4-стаен

КОД: 711

€ 375,000 / € 2,435.06 на м2 /

Варна, област м-т Кабакум

Площ:
154 м2

Тип:
4-стаен

Продава

3-стаен

КОД: 710

€ 159,900 / € 2,422.73 на м2 /

Варна Младост

Площ:
66 м2

Тип:
3-стаен

Етаж:
2 от 8

Продава

Сгради

КОД: 709

При запитване

Варна Изгрев

Площ:
8500 м2

Тип:
Сгради

Научи за новите имоти преди да бъдат публикувани!

* Натискайки бутона “Абонирай ме” Вие се съгласявате с нашите Общи условия и Политиката за защита на личните данни, като ще получавате имейлки от Нов Дом на посочения имейл адрес