+359 896 162 777 office@novvek.bg

гр. Варна, ул. София 3 Работно време: 9:00 - 18:00

Продава ЕКСКЛУЗИВНО 3-стаен КОД: 32

32

€ 127,314 / € 1,100.00 на м2 /

3-стаен Тип

Етаж 2 от 9 етажа

2 Спални

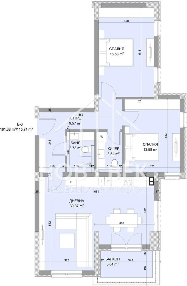
101.38 м2 Чиста площ

115.74 м2 Обща площ

€ 1,100.00 Цена м2

€ 127,314 Цена

  • Код: 32
  • Статус: Свободен
  • Изложение: Изток, Юг
  • Град: Варна
  • Строителство: Тухла
  • Година на строителство: 2025
  • Площ: 115.74 м2

НОВО КАЧЕСТВЕНО СТРОИТЕЛСТВО!!! СГРАДА РАЗПОЛОЖЕНА В НАЙ- ХУБАВА ЧАСТ НА КВАРТАЛ ВЛАДИСЛАВ ВАРНЕНЧИК!!! ВЪЗМОЖНОСТ ЗА ИЗБОР НА РАЗЛИЧНИ ОБЕКТИ!!! AKT 14 ПРЕЗ МАРТ!!!

Агенция за недвижими имоти НОВ ВЕК ви представя новият ни ексклузивен проект, сграда “VARNENCHIK 2&3”! Възможност за избор между различни етажи и изложения, открити паркоместа, подземен паркинг и самостоятелни гаражи! Сградата разполага с жилища с по една и две спални, както и възможност за обединение на апартаменти! Гъвкави схеми на плащане, според възможностите и профила на клиента. Всеки закупил имот в сградата, получава безплатна консултация с интериорен дизайнер, както и отстъпка при поръчка на проект за завършване и обзавеждане!

Имотът е с обща жилищна площ от 114,73 кв.м. и се състои от: коридор, дневна с кухня и трапезария, две спални, балкон пред дневната, баня с тоалетна, килер/перално, втора тоалетна . Към всеки имот ще бъдат включени съответните идеални части от общите части на сградата, както и от земята върху която ще бъде изграден обекта.

Сградата ще бъде разположена под бул. 3-ти март, близо до магазини KAUFLAND и JUMBO. Новите собственици ще имат на разположение всичко необходимо на пешеходно разстояние. Магазини, аптеки, парк с алеи за разходка и обособени места за домашни любимци, спирка на градски транспорт с редовни линии до всички части на града, училища и детски градини, фитнес зала, банки, пазар, офиси на спедиторски компании и много други!

ПРЕДИМСТВА НА СГРАДАТА:

· Функционални разпределения за максимален комфорт и уют на обитаване;

· Светли и просторни стаи с правилни форми, всяко жилище разполага с 1 или 2 сервизни помещения;

· Панорамна гледка към Варненското езеро и града;

· Качествено изпълнение до степен на завършеност БДС, подготвено за довършителни дейности;

· Възможност за обединение на апартаменти при нужда от по- голяма площ;

БОНУСИ ПРИ ПОКУПКА НА ИМОТ В СГРАДАТА:

· Безплатна консултация с интериорен дизайнер;

· Отстъпка при поръчка на проект за интериорен дизайн;

· Отстъпка от материалите, необходими за довършителни работи;

· Отстъпка при поръчка на обзавеждане и оборудване;

· Опция за завършване до ключ;

Код на обявата : 32

32
Продава ЕКСКЛУЗИВНО

32

3-стаен КОД: 32

€ 127,314 / € 1,100.00 на м2 /

Варна

Площ:
115.74 м2

Тип:
3-стаен

Етаж:
2

* Натискайки бутона “Изпращане” Вие се съгласявате с нашите Общи условия и Политиката за защита на личните данни.

Още имоти

Продава

3-стаен

КОД: 726

€ 170,000 / € 1,966.00 на м2 /

Варна Младост

Площ:
86.47 м2

Тип:
3-стаен

Етаж:
4 от 6

Продава ЕКСКЛУЗИВНО

2-стаен

КОД: 725

€ 135,000 / € 2,097.58 на м2 /

Варна Младост

Площ:
64.36 м2

Тип:
2-стаен

Етаж:
3 от 5

Продава

3-стаен

КОД: 724

€ 160,000 / € 1,467.89 на м2 /

Варна Колхозен пазар

Площ:
109 м2

Тип:
3-стаен

Отдава под наем ЕКСКЛУЗИВНО

3-стаен

КОД: 723

€ 500 / € 8.33 на м2 /

Варна Цветен

Площ:
60 м2

Тип:
3-стаен

Етаж:
1 от 8

Продава

Къща

КОД: 722

€ 698,000 / € 2,492.86 на м2 /

Варна Аспарухово

Площ:
280 м2

Тип:
Къща

Продава

2-стаен

КОД: 719

€ 128,500 / € 2,294.64 на м2 /

Варна Владиславово

Площ:
56 м2

Тип:
2-стаен

Етаж:
7 от 9

Продава ЕКСКЛУЗИВНО

3-стаен

КОД: 718

€ 125,000 / € 1,315.79 на м2 /

Варна

Площ:
95 м2

Тип:
3-стаен

Етаж:
5 от 9

Продава ЕКСКЛУЗИВНО

2-стаен

КОД: 717

€ 90,000 / € 1,363.64 на м2 /

Варна

Площ:
66 м2

Тип:
2-стаен

Етаж:
5 от 9

Продава

4-стаен

КОД: 711

€ 375,000 / € 2,435.06 на м2 /

Варна, област м-т Кабакум

Площ:
154 м2

Тип:
4-стаен

Продава

3-стаен

КОД: 710

€ 159,900 / € 2,422.73 на м2 /

Варна Младост

Площ:
66 м2

Тип:
3-стаен

Етаж:
2 от 8

Продава

Сгради

КОД: 709

При запитване

Варна Изгрев

Площ:
8500 м2

Тип:
Сгради

Научи за новите имоти преди да бъдат публикувани!

* Натискайки бутона “Абонирай ме” Вие се съгласявате с нашите Общи условия и Политиката за защита на личните данни, като ще получавате имейлки от Нов Дом на посочения имейл адрес