+359 896 162 777 office@novvek.bg

гр. Варна, ул. София 3 Работно време: 9:00 - 18:00

Продава 3-стаен КОД: 415

Тристаен апартамент в кв. Възраждане

€ 191,000 / € 1,446.97 на м2 /

3-стаен Тип

Етаж 9 от 13 етажа

2 Спални

108 м2 Чиста площ

132 м2 Обща площ

€ 1,446.97 Цена м2

€ 191,000 Цена

  • Код: 415
  • Статус: Свободен
  • Град: Варна
  • Район: Възраждане
  • Строителство: Тухла
  • Година на строителство: 2028
  • Площ: 132 м2

Нов век недвижими имоти ви предлага отлична възможност за инвестиция или собствен дом в един от най-перспективните райони на гр. Варна. Апартаментът е част от новострояща се жилищна сграда с модерна визия, качествено изпълнение и отлично местоположение, реализирана от утвърден и доказан инвеститор с дългогодишен опит на пазара.

Характеристики на имота:

  • Тип: Тристаен апартамент
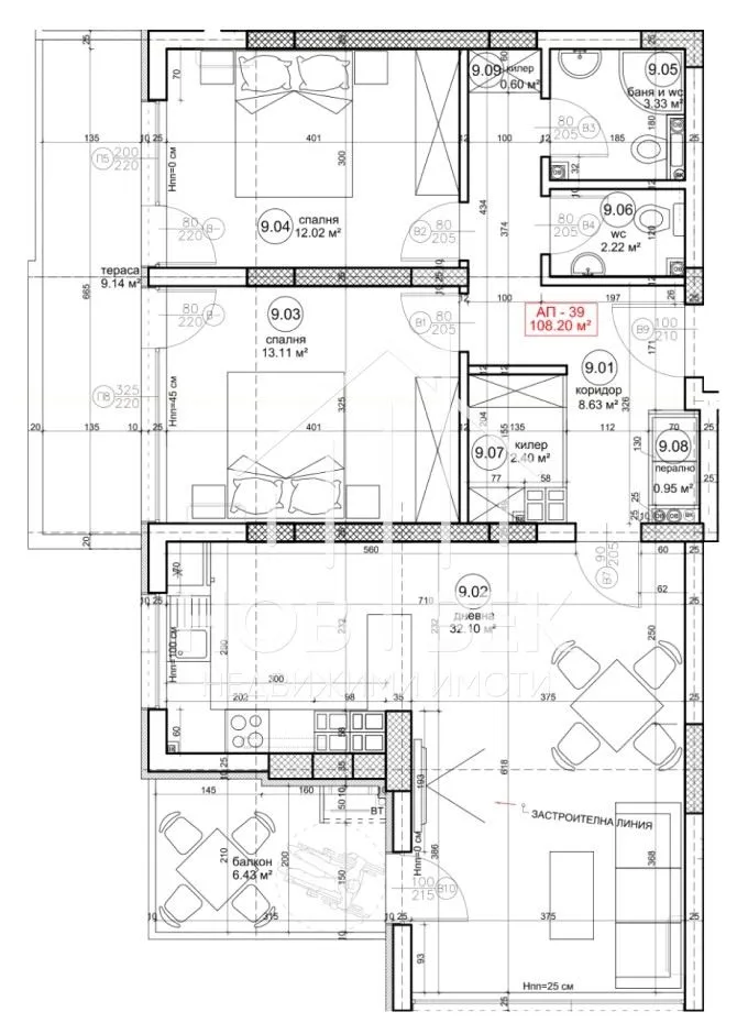
  • Площ: 132,43 кв.м (чиста площ + общи части)
  • Етаж: 9 от 13
  • Разпределение: входно антре, дневна с кухненски бокс, две спални, баня с тоалетна, тоалетна, перално/килер, тераса
  • Изложение: Югозапад
  • Отопление: Подготвено за климатична система
  • Състояние: В процес на строителство, завършване по БДС (с възможност за довършване „до ключ“)

Предимства на имота:

  • Сграда от утвърден строител с редица успешно завършени проекти
  • Качествени материали и съвременни технологии на строителство
  • Перфектна локация с бърз достъп до центъра на Варна, главни пътни артерии, магазини, училища, детски градини и градски транспорт
  • Гъвкави схеми на плащане и възможност за банково кредитиране

Очакван срок на завършване: април 2028 година

Не пропускайте възможността да се сдобиете с функционален и модерен апартамент, съчетаващ качество, локация и сигурност от доказан строител.

За повече информация и огледи:

📞 Богдан Димитров – 0883/458889

Тристаен апартамент в кв. Възраждане
Продава

Тристаен апартамент в кв. Възраждане

3-стаен КОД: 415

€ 191,000 / € 1,446.97 на м2 /

Варна Възраждане

Площ:
132 м2

Тип:
3-стаен

Етаж:
9

* Натискайки бутона “Изпращане” Вие се съгласявате с нашите Общи условия и Политиката за защита на личните данни.

Още имоти

Продава

3-стаен

КОД: 726

€ 170,000 / € 1,966.00 на м2 /

Варна Младост

Площ:
86.47 м2

Тип:
3-стаен

Етаж:
4 от 6

Продава ЕКСКЛУЗИВНО

2-стаен

КОД: 725

€ 135,000 / € 2,097.58 на м2 /

Варна Младост

Площ:
64.36 м2

Тип:
2-стаен

Етаж:
3 от 5

Продава

3-стаен

КОД: 724

€ 160,000 / € 1,467.89 на м2 /

Варна Колхозен пазар

Площ:
109 м2

Тип:
3-стаен

Отдава под наем ЕКСКЛУЗИВНО

3-стаен

КОД: 723

€ 500 / € 8.33 на м2 /

Варна Цветен

Площ:
60 м2

Тип:
3-стаен

Етаж:
1 от 8

Продава

Къща

КОД: 722

€ 698,000 / € 2,492.86 на м2 /

Варна Аспарухово

Площ:
280 м2

Тип:
Къща

Продава

2-стаен

КОД: 719

€ 128,500 / € 2,294.64 на м2 /

Варна Владиславово

Площ:
56 м2

Тип:
2-стаен

Етаж:
7 от 9

Продава ЕКСКЛУЗИВНО

3-стаен

КОД: 718

€ 125,000 / € 1,315.79 на м2 /

Варна

Площ:
95 м2

Тип:
3-стаен

Етаж:
5 от 9

Продава ЕКСКЛУЗИВНО

2-стаен

КОД: 717

€ 90,000 / € 1,363.64 на м2 /

Варна

Площ:
66 м2

Тип:
2-стаен

Етаж:
5 от 9

Продава

4-стаен

КОД: 711

€ 375,000 / € 2,435.06 на м2 /

Варна, област м-т Кабакум

Площ:
154 м2

Тип:
4-стаен

Продава

3-стаен

КОД: 710

€ 159,900 / € 2,422.73 на м2 /

Варна Младост

Площ:
66 м2

Тип:
3-стаен

Етаж:
2 от 8

Продава

Сгради

КОД: 709

При запитване

Варна Изгрев

Площ:
8500 м2

Тип:
Сгради

Научи за новите имоти преди да бъдат публикувани!

* Натискайки бутона “Абонирай ме” Вие се съгласявате с нашите Общи условия и Политиката за защита на личните данни, като ще получавате имейлки от Нов Дом на посочения имейл адрес