+359 896 162 777 office@novvek.bg

гр. Варна, ул. София 3 Работно време: 9:00 - 18:00

Продава 4-стаен КОД: 258

Четиристаен апартамент в кв. Левски

€ 233,000 / € 2,177.57 на м2 /

4-стаен Тип

Етаж 9 от 9 етажа

3 Спални

96 м2 Чиста площ

107 м2 Обща площ

€ 2,177.57 Цена м2

€ 233,000 Цена

  • Код: 258
  • Статус: Свободен
  • Град: Варна
  • Строителство: Тухла
  • Година на строителство: 2027
  • Площ: 107 м2

В СТРОЕЖ !

В САМИЯ КВАРТАЛ ЛЕВСКИ, НЕ СОТИРА ИЛИ ИЗГРЕВ !

НАЙ-ТЪРСЕНИЯ АПАРТАМЕНТ ЗА СЕМЕЙСТВА С ДВЕ ИЛИ ПОВЕЧЕ ДЕЦА !

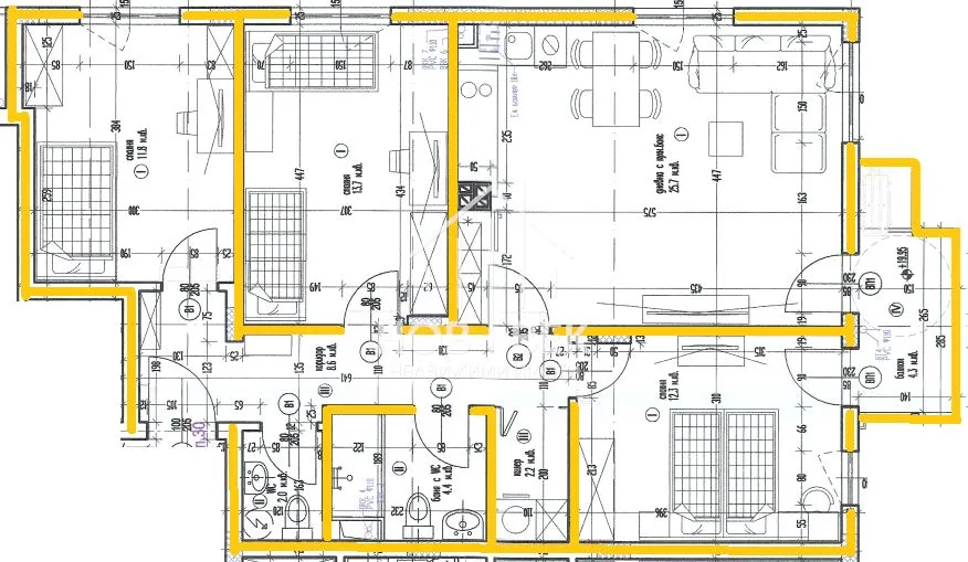
Нов век недвижими имоти предлага на вашето внимание комфортен четиристаен апартамент в кв. Левски.

Имота ще бъде разположен на девети последен етаж в сграда, която ще се отличава с модерна визия, качествени материали и висока енергийна ефективност.

На обща площ от 96,16кв.м. са разположени дневен тракт с кухненска част, три спални, баня с тоалетна, тоалетна, килер/перално, коридор и тераса.

Налични са за продажба открити и подземни паркоместа.

В сградата се предлагат също и апартаменти с едно и две спални.

За повече информация и огледи :

Богдан Димитров : 0883/458889

Четиристаен апартамент в кв. Левски
Продава

Четиристаен апартамент в кв. Левски

4-стаен КОД: 258

€ 233,000 / € 2,177.57 на м2 /

Варна

Площ:
107 м2

Тип:
4-стаен

Етаж:
9

* Натискайки бутона “Изпращане” Вие се съгласявате с нашите Общи условия и Политиката за защита на личните данни.

Още имоти

Продава

3-стаен

КОД: 726

€ 170,000 / € 1,966.00 на м2 /

Варна Младост

Площ:
86.47 м2

Тип:
3-стаен

Етаж:
4 от 6

Продава ЕКСКЛУЗИВНО

2-стаен

КОД: 725

€ 135,000 / € 2,097.58 на м2 /

Варна Младост

Площ:
64.36 м2

Тип:
2-стаен

Етаж:
3 от 5

Продава

3-стаен

КОД: 724

€ 160,000 / € 1,467.89 на м2 /

Варна Колхозен пазар

Площ:
109 м2

Тип:
3-стаен

Отдава под наем ЕКСКЛУЗИВНО

3-стаен

КОД: 723

€ 500 / € 8.33 на м2 /

Варна Цветен

Площ:
60 м2

Тип:
3-стаен

Етаж:
1 от 8

Продава

Къща

КОД: 722

€ 698,000 / € 2,492.86 на м2 /

Варна Аспарухово

Площ:
280 м2

Тип:
Къща

Продава

2-стаен

КОД: 719

€ 128,500 / € 2,294.64 на м2 /

Варна Владиславово

Площ:
56 м2

Тип:
2-стаен

Етаж:
7 от 9

Продава ЕКСКЛУЗИВНО

3-стаен

КОД: 718

€ 125,000 / € 1,315.79 на м2 /

Варна

Площ:
95 м2

Тип:
3-стаен

Етаж:
5 от 9

Продава ЕКСКЛУЗИВНО

2-стаен

КОД: 717

€ 90,000 / € 1,363.64 на м2 /

Варна

Площ:
66 м2

Тип:
2-стаен

Етаж:
5 от 9

Продава

4-стаен

КОД: 711

€ 375,000 / € 2,435.06 на м2 /

Варна, област м-т Кабакум

Площ:
154 м2

Тип:
4-стаен

Продава

3-стаен

КОД: 710

€ 159,900 / € 2,422.73 на м2 /

Варна Младост

Площ:
66 м2

Тип:
3-стаен

Етаж:
2 от 8

Продава

Сгради

КОД: 709

При запитване

Варна Изгрев

Площ:
8500 м2

Тип:
Сгради

Научи за новите имоти преди да бъдат публикувани!

* Натискайки бутона “Абонирай ме” Вие се съгласявате с нашите Общи условия и Политиката за защита на личните данни, като ще получавате имейлки от Нов Дом на посочения имейл адрес