+359 896 162 777 office@novvek.bg

гр. Варна, ул. София 3 Работно време: 9:00 - 18:00

Продава Къща КОД: 483

Къща в м-т Евксиноград

€ 350,000 / € 1,741.29 на м2 /

Къща Тип

Етаж 0 от 0 етажа

0 Спални

0 м2 Чиста площ

201 м2 Обща площ

€ 1,741.29 Цена м2

€ 350,000 Цена

  • Код: 483
  • Статус: Свободен
  • Град: Варна
  • Район: м-т Евксиноград
  • Строителство: Тухла
  • Година на строителство: 2028
  • Парцел: 201 м2

Ние от НОВ ВЕК Недвижими имоти предлагаме на вашето внимание къща с модерна архитектура, намираща се в м-т Евксиноград. Строителство на къща ще започне през пролетта 2026г.

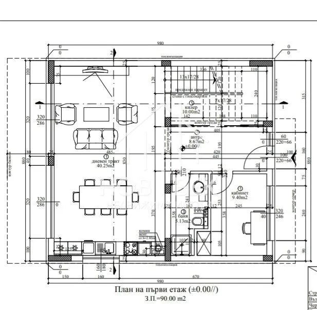
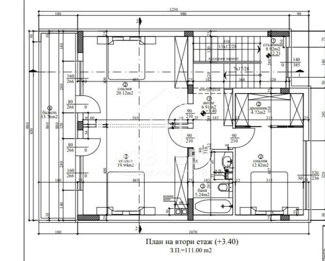
РЗП: 201 кв.м.

Първи етаж 90кв.м. – Просторен и слънчев дневен тракт с френски прозорци, баня с тоалетна, кабинет/спалня, стълбище към втори етаж.

Втори етаж 111кв.м. – 3 спални -17.5кв.м. и 2 по 20кв.м., баня с тоалетна и голяма тераса.

Височина на тавана на 1 етаж е над 3 м . 2 паркомяста.

Възможен гараж.

По проект е предвидено водно подово отопление.

Дата на завършване на Груб строеж е септември 2026г.

Има възможност за завършване по избор на купувача.

Възможно преустройство спрямо предпочитанията на клиента!

Цената от 350000€ e за изграждане до степен Груб строеж!

За повече информация и оглед:

Валентин Динев +359882853331

Къща в м-т Евксиноград
Продава

Къща в м-т Евксиноград

Къща КОД: 483

€ 350,000 / € 1,741.29 на м2 /

Варна м-т Евксиноград

Площ:
201 м2

Тип:
Къща

Етаж:
0

* Натискайки бутона “Изпращане” Вие се съгласявате с нашите Общи условия и Политиката за защита на личните данни.

Още имоти

Продава

3-стаен

КОД: 726

€ 170,000 / € 1,966.00 на м2 /

Варна Младост

Площ:
86.47 м2

Тип:
3-стаен

Етаж:
4 от 6

Продава ЕКСКЛУЗИВНО

2-стаен

КОД: 725

€ 135,000 / € 2,097.58 на м2 /

Варна Младост

Площ:
64.36 м2

Тип:
2-стаен

Етаж:
3 от 5

Продава

3-стаен

КОД: 724

€ 160,000 / € 1,467.89 на м2 /

Варна Колхозен пазар

Площ:
109 м2

Тип:
3-стаен

Отдава под наем ЕКСКЛУЗИВНО

3-стаен

КОД: 723

€ 500 / € 8.33 на м2 /

Варна Цветен

Площ:
60 м2

Тип:
3-стаен

Етаж:
1 от 8

Продава

Къща

КОД: 722

€ 698,000 / € 2,492.86 на м2 /

Варна Аспарухово

Площ:
280 м2

Тип:
Къща

Продава

2-стаен

КОД: 719

€ 128,500 / € 2,294.64 на м2 /

Варна Владиславово

Площ:
56 м2

Тип:
2-стаен

Етаж:
7 от 9

Продава ЕКСКЛУЗИВНО

3-стаен

КОД: 718

€ 125,000 / € 1,315.79 на м2 /

Варна

Площ:
95 м2

Тип:
3-стаен

Етаж:
5 от 9

Продава ЕКСКЛУЗИВНО

2-стаен

КОД: 717

€ 90,000 / € 1,363.64 на м2 /

Варна

Площ:
66 м2

Тип:
2-стаен

Етаж:
5 от 9

Продава

4-стаен

КОД: 711

€ 375,000 / € 2,435.06 на м2 /

Варна, област м-т Кабакум

Площ:
154 м2

Тип:
4-стаен

Продава

3-стаен

КОД: 710

€ 159,900 / € 2,422.73 на м2 /

Варна Младост

Площ:
66 м2

Тип:
3-стаен

Етаж:
2 от 8

Продава

Сгради

КОД: 709

При запитване

Варна Изгрев

Площ:
8500 м2

Тип:
Сгради

Научи за новите имоти преди да бъдат публикувани!

* Натискайки бутона “Абонирай ме” Вие се съгласявате с нашите Общи условия и Политиката за защита на личните данни, като ще получавате имейлки от Нов Дом на посочения имейл адрес