+359 896 162 777 office@novvek.bg

гр. Варна, ул. София 3 Работно време: 9:00 - 18:00

Продава Къща КОД: 50

Самостоятелна къща за продажба в м-т Траката

€ 435,000 / € 2,004.61 на м2 /

Къща Тип

Етаж 0 от 0 етажа

0 Спални

0 м2 Чиста площ

217 м2 Обща площ

€ 2,004.61 Цена м2

€ 435,000 Цена

  • Код: 50
  • Статус: Свободен
  • Град: Варна
  • Район: Траката
  • Строителство: Тухла
  • Година на строителство: 2026
  • Парцел: 217 м2

НОВ ВЕК недвижими имоти предлага на Вашето внимание двуетажна къща с РЗП 217 кв.м. и дворно място от 354,58 кв.м. в новостроящ се затворен комплекс.

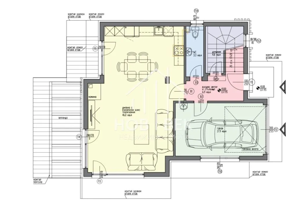
Първи етаж е със ЗП 95,4 кв.м. и се състои от:

-просторен дневен тракт с кухненски кът-46 кв.м.;

-веранда, тоалетна, килер, входно антре и стълбищна клетка;

-гараж-18 кв.м.

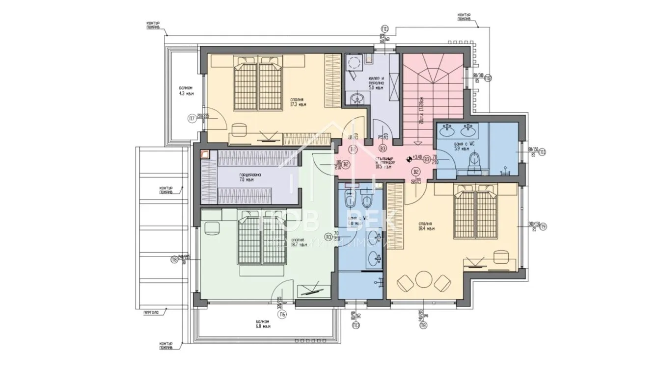
Втори етаж е със ЗП 121,6 кв.м. и се състои от:

-спалня 1 с прилежаща тераса – 18,7 кв.м. с дрешник и прилежаща баня с тоалетна;

-спалня 2 – 18,4 кв.м.;

-спалня 3 с прилежаща тераса – 17,3 кв.м.

-баня с тоалетна, килер/перално помещение, кородор и стълбищна клетка.

Комплексът се състои от 8 двуетажни и 10 триетажни къщи, разполага с отопляем басейн, детска площадка и открит фитнес.

Всяка от къщите ще бъде завършена по БДС,с монтирана алуминиева дограма с термомост на REYNAERS със система за плъзгане с повдигане CXPLS, централно подово отопление, подготовка за изграждане на фотоволтаична система на покрива на всяка къща и ‘smart home’ система.

Допълнителните паркоместа пред всяка от къщите са БОНУС.

Плащането е разсрочено по време на строителството и е индивидуално за всеки клиент.

НОВ ВЕК Недвижими имоти ще бъде до вас през целия процес на сделката! Извършваме всички необходими технически и юридически проверки на имота, който сте избрали. Агенцията може да ви съдейства и за отпускане на банков кредит при преференциални условия!

НОВ ВЕК – Нови възможности

За повече информация не се колебайте да ме потърсите на :

359882853331 Валентин Динев

Самостоятелна къща за продажба в м-т Траката
Продава

Самостоятелна къща за продажба в м-т Траката

Къща КОД: 50

€ 435,000 / € 2,004.61 на м2 /

Варна Траката

Площ:
217 м2

Тип:
Къща

Етаж:
0

* Натискайки бутона “Изпращане” Вие се съгласявате с нашите Общи условия и Политиката за защита на личните данни.

Още имоти

Продава

3-стаен

КОД: 726

€ 170,000 / € 1,966.00 на м2 /

Варна Младост

Площ:
86.47 м2

Тип:
3-стаен

Етаж:
4 от 6

Продава ЕКСКЛУЗИВНО

2-стаен

КОД: 725

€ 135,000 / € 2,097.58 на м2 /

Варна Младост

Площ:
64.36 м2

Тип:
2-стаен

Етаж:
3 от 5

Продава

3-стаен

КОД: 724

€ 160,000 / € 1,467.89 на м2 /

Варна Колхозен пазар

Площ:
109 м2

Тип:
3-стаен

Отдава под наем ЕКСКЛУЗИВНО

3-стаен

КОД: 723

€ 500 / € 8.33 на м2 /

Варна Цветен

Площ:
60 м2

Тип:
3-стаен

Етаж:
1 от 8

Продава

Къща

КОД: 722

€ 698,000 / € 2,492.86 на м2 /

Варна Аспарухово

Площ:
280 м2

Тип:
Къща

Продава

2-стаен

КОД: 719

€ 128,500 / € 2,294.64 на м2 /

Варна Владиславово

Площ:
56 м2

Тип:
2-стаен

Етаж:
7 от 9

Продава ЕКСКЛУЗИВНО

3-стаен

КОД: 718

€ 125,000 / € 1,315.79 на м2 /

Варна

Площ:
95 м2

Тип:
3-стаен

Етаж:
5 от 9

Продава ЕКСКЛУЗИВНО

2-стаен

КОД: 717

€ 90,000 / € 1,363.64 на м2 /

Варна

Площ:
66 м2

Тип:
2-стаен

Етаж:
5 от 9

Продава

4-стаен

КОД: 711

€ 375,000 / € 2,435.06 на м2 /

Варна, област м-т Кабакум

Площ:
154 м2

Тип:
4-стаен

Продава

3-стаен

КОД: 710

€ 159,900 / € 2,422.73 на м2 /

Варна Младост

Площ:
66 м2

Тип:
3-стаен

Етаж:
2 от 8

Продава

Сгради

КОД: 709

При запитване

Варна Изгрев

Площ:
8500 м2

Тип:
Сгради

Научи за новите имоти преди да бъдат публикувани!

* Натискайки бутона “Абонирай ме” Вие се съгласявате с нашите Общи условия и Политиката за защита на личните данни, като ще получавате имейлки от Нов Дом на посочения имейл адрес